Retour à la liste
  • 4 Chambre(s)
  • 150 m² habitables
  • 2 Salles de bain
  • 676 m² de terrain

Description du bien

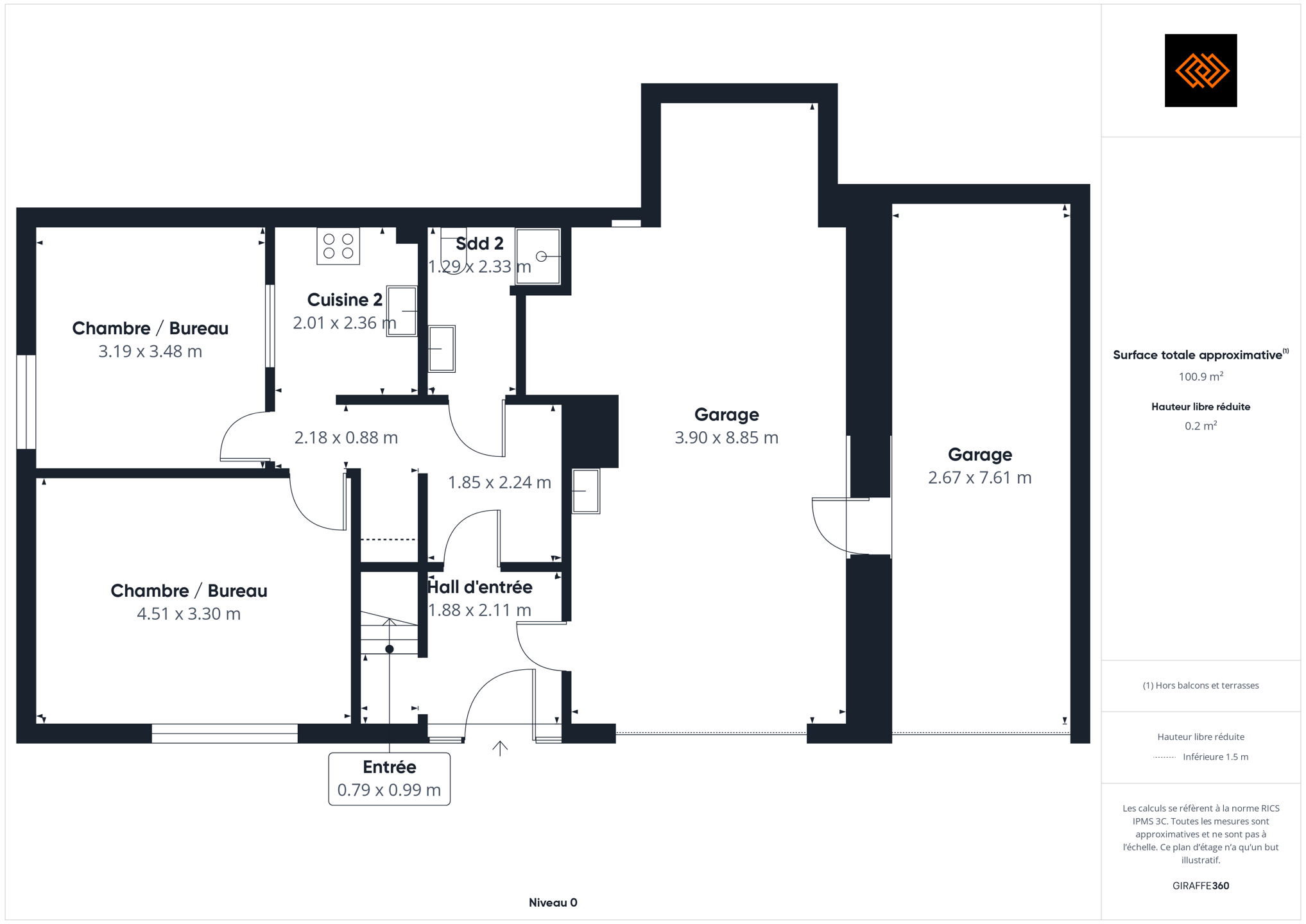
Située dans une rue en cul-de-sac paisible à l’entrée du bois, cette spacieuse villa unifamiliale offre un cadre de vie idéal pour une famille à la recherche de tranquillité et de confort. Le rez-de-chaussée dispose d’un petit studio comprenant une salle de douche et une kitchenette, parfait pour un logement kangourou ou pour accueillir un proche en toute autonomie. Cet espace peut aussi être repensé en deux chambres selon vos projets. À l’étage, vous découvrirez un grand séjour lumineux, une cuisine à moderniser, 2 chambres supplémentaires, une deuxième salle de douche ainsi qu’un bureau parfait pour le télétravail ou une salle de jeux. La maison dispose également de châssis en PVC double vitrage, d’un chauffage au mazout complété par une cassette à bois, de deux garages, d’une agréable terrasse et d’un jardin orienté sud-est, idéal pour profiter des beaux jours. Bien que la maison nécessite une modernisation, son énorme potentiel séduira les acquéreurs en quête d’un projet personnalisé. Une opportunité rare pour ceux qui souhaitent allier espace, nature et confort familial. PEB : D – 265 kWh/m².an – Code unique : 20250513023616 Pour plus d'informations sur ce bien et pour planifier une visite, veuillez contacter JULES IMMO à l'adresse visite@julesimmo.be et/ou au 04/240.08.75.
Informations générales
  • Meublé Non
  • Surface habitable 150,00 m²
  • Etat À rénover
  • Ascenseur Non
  • Double vitrage Oui
  • Chassis pvc
  • Type de chauffage individuel
  • Type d'énergie du chauffage mazout (chauf. centr.)
  • Nombre de chambres 4
  • Nombre de salles de bain 2

Localisation

Vous pourriez aussi être intéressé par ces biens :

Vendu
df79b92642ff43f68453c92db2d4f822.png Àpd 175 000 €

Vendu Maison unifamiliale à Sprimont

2
75 m²
46 m²
Vendu
35191c71b366463886deb39c0a701b81.png Àpd 149 000 €

Vendu Maison à Flémalle

3
109 m²
325 m²
Vendu
a248adaec406407da806c8265f2a1e40.jpg Àpd 249 000 €

Vendu Appartement à Visé

2
77 m²
Vendu
bad2bf23ff42403aad10a0e56259ae4c.jpg Àpd 299 000 €

Vendu Maison de caractère à Fléron

4
253 m²
682 m²
Vendu
ca76b8ec7401498cb5d3dcc67b711025.jpg Àpd 149 000 €

Vendu Maison unifamiliale à Fléron Romsée

4
169 m²
670 m²
Vendu
79eeff7f4bca40ca9e3523e34496554c.jpg Àpd 219 000 €

Vendu Appartement à Liège

2
96 m²
Vendu
6d0596deda7d4474902d19fc43f339d3.png Àpd 199 000 €

Vendu Immeuble mixte à Ans

2
100 m²
432 m²
Vendu
6208efeba382434893d6444810f2a28c.png Àpd 199 000 €

Vendu Maison unifamiliale à Grâce-Hollogne

2
93 m²
140 m²
Vendu
Àpd 149 000 €

Vendu Maison unifamiliale à Seraing

3
105 m²
163 m²
Vendu
Àpd 199 000 €

Vendu Maison unifamiliale à Chaudfontaine

3
125 m²
142 m²
Vendu
Àpd 219 000 €

Vendu Villa à Flémalle

4
150 m²
676 m²
Vendu
Àpd 149 000 €

Vendu Maison unifamiliale à Beyne-Heusay

2
104 m²
128 m²
Vendu
Àpd 205 000 €

Vendu Maison à Liège

2
98 m²
70 m²
Vendu
Àpd 299 000 €

Vendu Maison à Herstal

4
125 m²
912 m²

Soyez le premier informé de nos nouveaux bien