Retour à la liste
Référence :  7301446
Partager 
  • 2 Chambre(s)
  • 97 m² habitables
  • 1 Salles de bain
  • 1214 m² de terrain

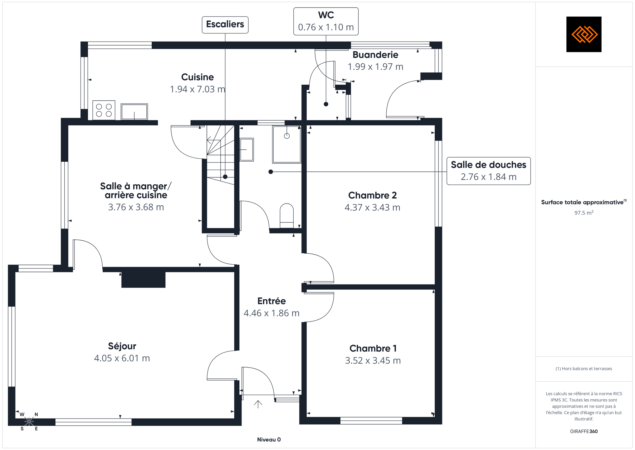
Description du bien

Situé à Jeneffe, ce bungalow offre un cadre de vie calme et agréable, au sein d’un quartier résidentiel particulièrement paisible. Développant une superficie habitable d’environ 97 m², ce bien de plain-pied séduira les amateurs de confort et de fonctionnalité. L’habitation se compose de deux chambres confortables, d’une salle de douches ainsi que d’une salle de séjour lumineuse, offrant un espace de vie convivial et agréable au quotidien. Le bien dispose d’un grand jardin, véritable atout pour profiter d’un environnement verdoyant et tranquille. Une buanderie pratique ainsi qu’un grand garage complètent l’ensemble et offrent de belles possibilités de rangement et de stationnement. PEB G - 618 kwh/m2/an - code unique : 20260109014390. Le prix ne constitue pas le seul critère qui sera pris en compte pour l'acceptation de l'offre. Pour plus d'informations sur ce bien et pour planifier une visite, veuillez contacter JULES IMMO à l'adresse visite@julesimmo.be et/ou au 04/240.08.75.
Informations générales
  • Meublé Non
  • Surface habitable 97,00 m²
  • Etat À rafraîchir
  • Ascenseur Non
  • Double vitrage Oui
  • Chassis bois ou pvc
  • Type d'énergie du chauffage mazout (chauf. centr.)
  • Nombre de chambres 2
  • Nombre de salles de bain 1

Localisation

Vous pourriez aussi être intéressé par ces biens :

Option
d4ca688748954e628bc710758bfdcd84.jpg Àpd 379 000 €

Option v. Villa à Fléron

3
160 m²
449 m²
Option
184f0d95d2c94bfa94004f6018ba701f.png Àpd 99 000 €

Option v. Appartement à Liège Grivegnée

2
64 m²
Option
9e88f1afc3694381a6c97023e222e52b.png Àpd 199 000 €

Option v. Maison unifamiliale à Saint-Nicolas Montegnée

2
123 m²
Option
d86d595b459343ac80d29f23913e8896.png Àpd 79 000 €

Option v. Maison à Seraing

3
95 m²
100 m²
Option
17df4aa84c37491092e07e59f6ec5c25.png Àpd 219 000 €

Option v. Maison à Chaudfontaine

3
87 m²
219 m²
Option
df79b92642ff43f68453c92db2d4f822.png Àpd 175 000 €

Option v. Maison unifamiliale à Sprimont

2
75 m²
46 m²
Option
64c0293fff63474a9880c608852fefcd.png Àpd 249 000 €

Option v. Maison unifamiliale à Ans

4
200 m²
476 m²
Option
a248adaec406407da806c8265f2a1e40.jpg Àpd 249 000 €

Option v. Appartement à Visé

2
77 m²
Option
6b45a37b62ac4c3e820a268e9b8c190c.jpg Àpd 299 000 €

Option v. Maison de caractère à Fléron

4
253 m²
682 m²
Option
bad2bf23ff42403aad10a0e56259ae4c.jpg Àpd 299 000 €

Option v. Maison de caractère à Fléron

4
253 m²
682 m²
Option
ca76b8ec7401498cb5d3dcc67b711025.jpg Àpd 149 000 €

Option v. Maison unifamiliale à Fléron Romsée

4
169 m²
670 m²
Option
79eeff7f4bca40ca9e3523e34496554c.jpg Àpd 219 000 €

Option v. Appartement à Liège

2
96 m²
Option
ba14658467064107a4dc542f49eec1b9.jpg Àpd 249 000 €

Option v. Bungalow à Donceel Jeneffe

2
97 m²
1214 m²
Option
bee20b126d4947bdbade121c5df83681.png Àpd 179 000 €

Option v. Entrepôt à Liège

263 m²

Soyez le premier informé de nos nouveaux bien