Retour à la liste
Référence :  7563103
Partager 

Immeuble à appartements

À Vendre
Rue du Corbeau 73 4820 Dison
  • 6 Chambre(s)
  • 386 m² habitables
  • 5 Salles de bain

Description du bien

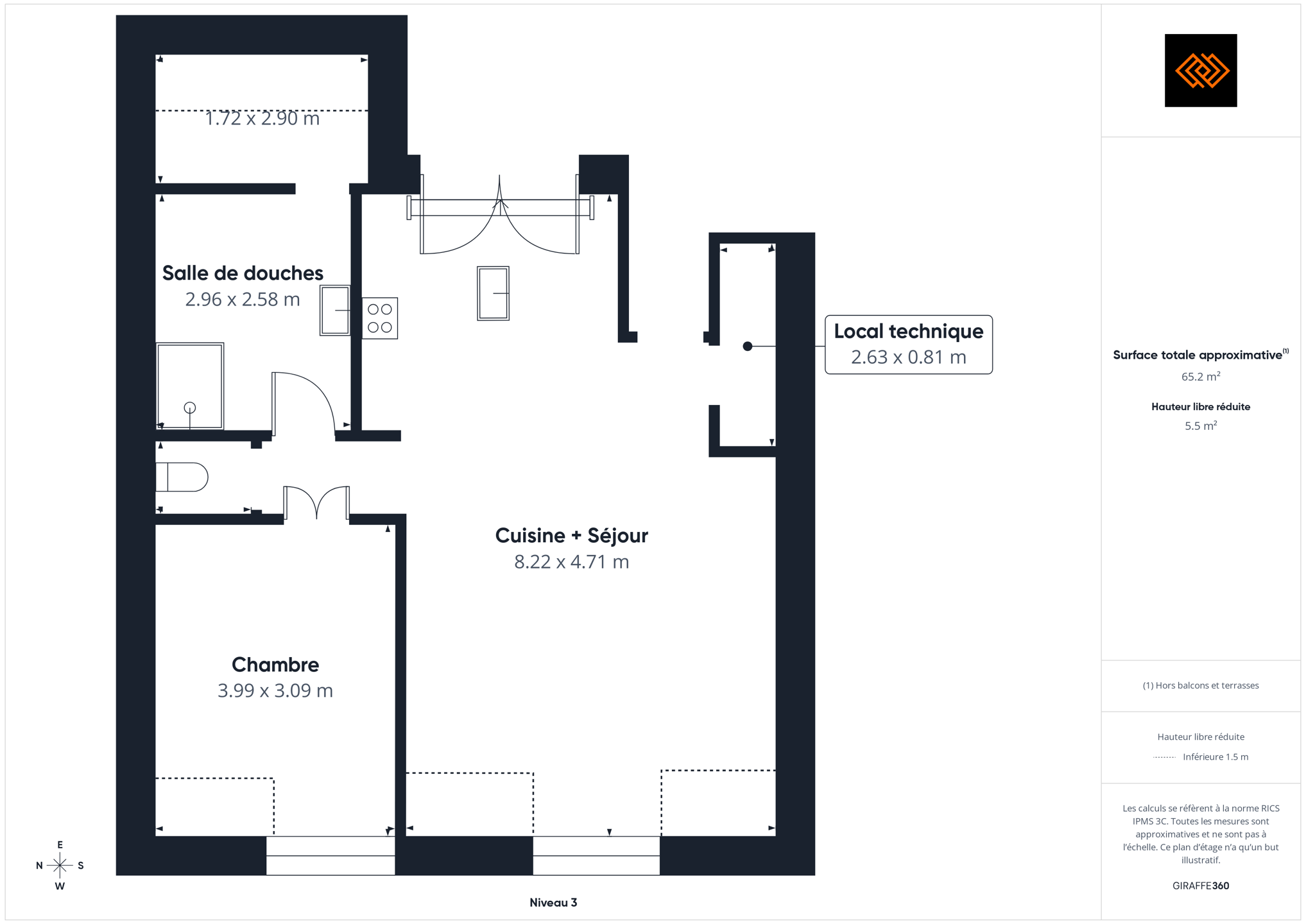
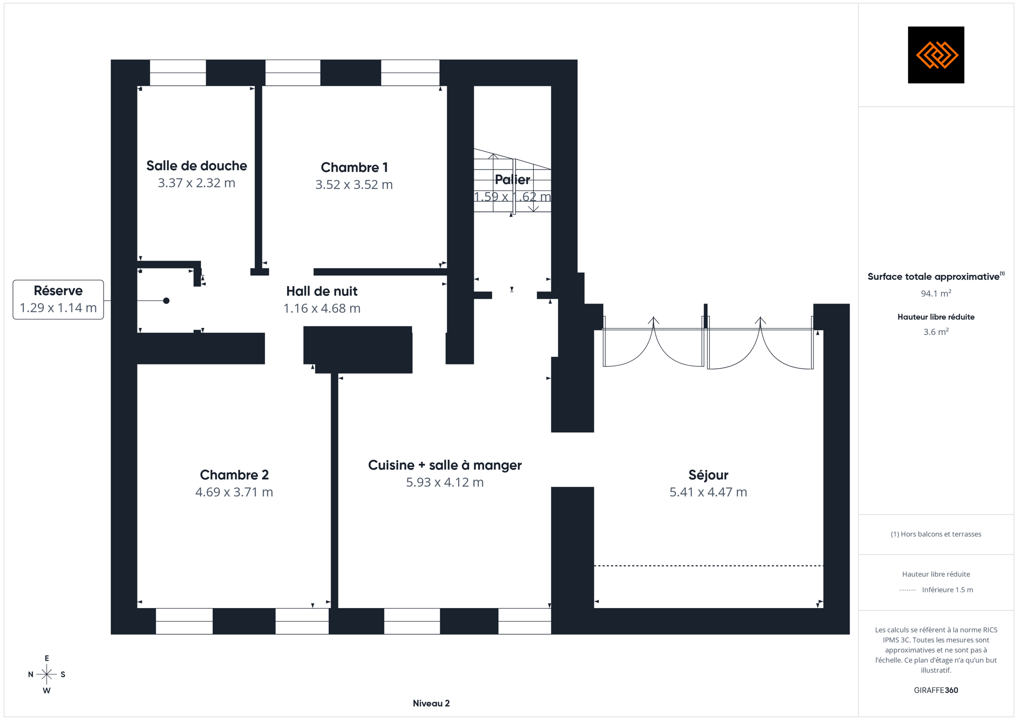
Immeuble de rapport avec permis et plans – Opportunité investisseurs JULES IMMO vous propose cet immeuble de rapport vendu avec les autorisations urbanistiques et les plans approuvés (5 lots), offrant un fort potentiel de valorisation après travaux. La configuration projetée est la suivante : Rez-de-chaussée : un studio une chambre et un bureau professionnel 1er étage : un appartement deux chambres avec terrasse 2e étage : un appartement deux chambres avec terrasse 3e étage : un appartement une chambre avec terrasse L’immeuble est vendu en état de travaux, permettant à l’acquéreur de finaliser les aménagements selon ses objectifs, le troisième étage est quasiment terminé. Le bien dispose également d’une cour commune, d’un espace dédié aux poubelles, d’un local vélos ainsi que de caves, apportant une réelle plus-value fonctionnelle. Cet immeuble représente une opportunité idéale pour entrepreneurs ou investisseurs souhaitant finaliser les travaux afin de revendre ou exploiter le bien avec une excellente rentabilité. PEB : C – 200kWh/m²/an – Code unique : 20260227012423 Le prix ne constitue pas le seul critère qui sera pris en compte pour l'acceptation de l'offre. Pour plus d'informations sur ce bien et pour planifier une visite, veuillez contacter JULES IMMO à l'adresse visite@julesimmo.be et/ou au 04/240.08.75.
Informations générales
  • Meublé Non
  • Surface habitable 386,00 m²
  • Etat À rénover
  • Ascenseur Non
  • Double vitrage Oui
  • Chassis pvc
  • Type d'énergie du chauffage gaz (chau. centr.)
  • Nombre de chambres 6
  • Nombre de salles de bain 5

Localisation

Vous pourriez aussi être intéressé par ces biens :

Nouveau
456c6e0f23964590b9ec8073b75b9ad9.jpg Àpd 499 000 €

À Vendre Villa à Chaudfontaine Embourg

4
155 m²
866 m²
Nouveau
456c6e0f23964590b9ec8073b75b9ad9.jpg Àpd 499 000 €

À Vendre Villa à Chaudfontaine

4
155 m²
866 m²
Nouveau
726dcf93e70b461db52cd88171424a22.png Àpd 119 000 €

À Vendre Appartement à Blégny Barchon

1
51 m²
Nouveau
b4ae8c0a34064ec3a60221e532840409.png Àpd 249 000 €

À Vendre Maison unifamiliale à Ans Loncin

3
128 m²
210 m²
Nouveau
d4ca688748954e628bc710758bfdcd84.jpg Àpd 379 000 €

À Vendre Villa à Fléron

3
160 m²
449 m²
Nouveau
adcc91d3432845f3ac3dbd9f95a2bbae.png Àpd 375 000 €

À Vendre Villa à Neupré

3
160 m²
1250 m²
Nouveau
c83a275689c34c37a990067418fca0f7.png Àpd 125 000 €

À Vendre Appartement à Liège

1
50 m²
Nouveau
c5957bc2e48742c8b119c00402ebf481.png Àpd 149 000 €

À Vendre Maison à Fléron

3
130 m²
200 m²
184f0d95d2c94bfa94004f6018ba701f.png Àpd 99 000 €

À Vendre Appartement à Liège Grivegnée

2
64 m²
76608a30ce114733ad653f1ad01a2648.jpg Àpd 279 000 €

À Vendre Maison à Trooz

3
197 m²
200 m²
60c2125b75634d24a5fe5b99bb58e1f7.png Àpd 399 000 €

À Vendre Immeuble à appartements à Dison

6
386 m²
8df49dbbb31146958609137338209947.png 265 000 €

À Vendre Maison unifamiliale à Grâce-Hollogne

3
326 m²
245 m²
374571b7fbdb47e5be904feea0dd6aed.png Àpd 149 000 €

À Vendre Appartement à Herstal

3
92 m²
96aa75d350cd4378a4443c07dc12fa54.jpg Àpd 249 000 €

À Vendre Immeuble mixte à Ans Loncin

2
107 m²
210 m²

Soyez le premier informé de nos nouveaux bien