Retour à la liste
  • 3 Chambre(s)
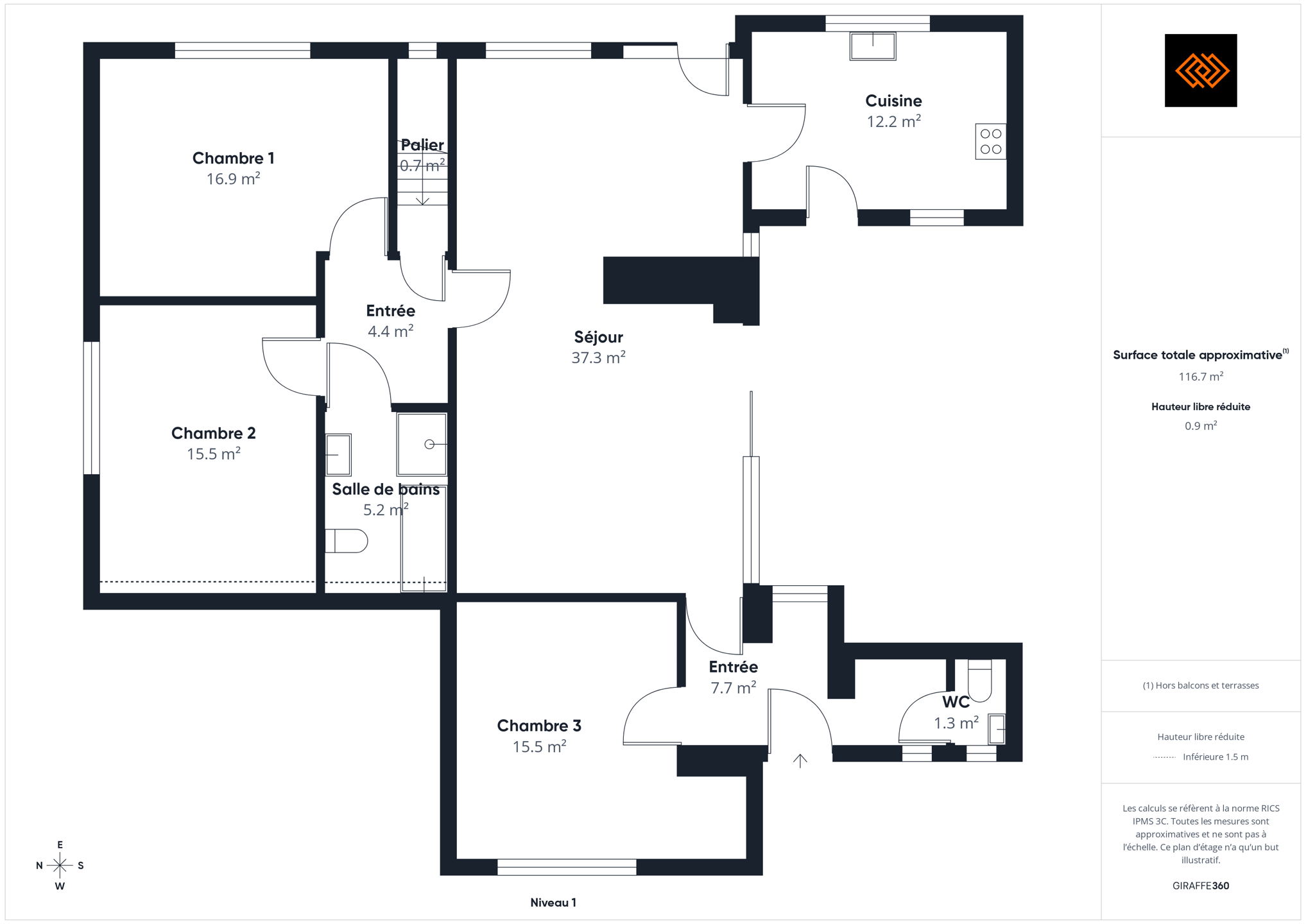
  • 160 m² habitables
  • 1 Salles de bain
  • 1250 m² de terrain

Description du bien

Située dans le quartier prisé de Neupré, cette villa 4 façades construite en 1976 offre un cadre de vie paisible et verdoyant sur une superbe parcelle de 1.250 m². De plain-pied, la maison se compose de 3 grandes chambres, idéales pour une famille ou pour aménager un bureau confortable. Son séjour lumineux de 37 m² vous séduira par ses volumes généreux et sa belle luminosité naturelle. La maison est en bon état général et offre un excellent potentiel de modernisation pour créer un intérieur à votre image. Chauffage au mazout. Côté pratique, vous bénéficiez d’un grand garage 2 voitures, de plusieurs emplacements de parking à l’avant ainsi que d’une cave pouvant être aménagée selon vos besoins (espace loisirs, buanderie, bureau, rangement, etc.). Un bien rare dans un environnement recherché, alliant tranquillité, espace et potentiel. PEB E - 381 kWh/m²/an - code unique : 20241115001102 Le prix ne constitue pas le seul critère qui sera pris en compte pour l'acceptation de l'offre. Pour plus d'informations sur ce bien et pour planifier une visite, veuillez contacter JULES IMMO à l'adresse visite@julesimmo.be et/ou au 04/240.08.75.
Informations générales
  • Meublé Non
  • Surface habitable 160,00 m²
  • Etat À rafraîchir
  • Ascenseur Non
  • Double vitrage Oui
  • Chassis bois
  • Type de chauffage individuel
  • Type d'énergie du chauffage mazout (chauf. centr.)
  • Nombre de chambres 3
  • Nombre de salles de bain 1

Localisation

Vous pourriez aussi être intéressé par ces biens :

Option
71642e1d0de54e969633945ad2969fd8.png Àpd 179 000 €

Option v. Maison à Beyne-Heusay

2
91 m²
93 m²
Option
b2b47c25775341ecb17348747c0d78fa.png Àpd 249 000 €

Option v. Maison unifamiliale à Fléron Romsée

2
101 m²
176 m²
Option
c509df8c694a46fd9208b9aa33b8d8c6.png Àpd 399 000 €

Option v. Maison unifamiliale à Fléron Retinne

3
124 m²
429 m²
Option
d425bbb654824f6cb26304da4b25ccee.png Àpd 275 000 €

Option v. Maison unifamiliale à Trooz

4
186 m²
725 m²
Option
a70e1e89e4a9469ab7c6882a8fa71501.png Àpd 9 000 €

Option v. Garage (ferme) à Herstal

Option
b4ae8c0a34064ec3a60221e532840409.png Àpd 249 000 €

Option v. Maison unifamiliale à Ans Loncin

3
128 m²
210 m²
Option
d4ca688748954e628bc710758bfdcd84.jpg Àpd 379 000 €

Option v. Villa à Fléron

3
160 m²
449 m²
Option
adcc91d3432845f3ac3dbd9f95a2bbae.png Àpd 375 000 €

Option v. Villa à Neupré

3
160 m²
1250 m²
Option
c83a275689c34c37a990067418fca0f7.png Àpd 125 000 €

Option v. Appartement à Liège

1
50 m²
Option
c5957bc2e48742c8b119c00402ebf481.png Àpd 149 000 €

Option v. Maison à Fléron

3
130 m²
200 m²
Option
184f0d95d2c94bfa94004f6018ba701f.png Àpd 99 000 €

Option v. Appartement à Liège Grivegnée

2
64 m²
Option
76608a30ce114733ad653f1ad01a2648.jpg Àpd 279 000 €

Option v. Maison à Trooz

3
197 m²
200 m²
Option
9e88f1afc3694381a6c97023e222e52b.png Àpd 199 000 €

Option v. Maison unifamiliale à Saint-Nicolas Montegnée

2
123 m²
Option
d86d595b459343ac80d29f23913e8896.png Àpd 79 000 €

Option v. Maison à Seraing

3
95 m²
100 m²

Soyez le premier informé de nos nouveaux bien