Retour à la liste
Référence :  7284336
Partager 

Description du bien

Situé à Grivegnée, cet entrepôt représente une belle opportunité tant pour les investisseurs que pour les personnes ayant besoin d’un espace de stockage ou de travail pour leur activité professionnelle. Le bâtiment est raccordé aux égouts et à l'électricité. Le raccordement à l’eau sera à charge de l’acquéreur. La structure offre un espace polyvalent, adapté à divers types d’usages professionnels ou artisanaux. Son emplacement en zone urbaine, à proximité des axes principaux de Liège, constitue un atout majeur en termes d’accessibilité et de visibilité. Un bien rare sur le marché, offrant un excellent potentiel. Le prix ne constitue pas le seul critère qui sera pris en compte pour l'acceptation de l'offre. Pour plus d'informations sur ce bien et pour planifier une visite, veuillez contacter JULES IMMO à l'adresse visite@julesimmo.be et/ou au 04/240.08.75.
Informations générales
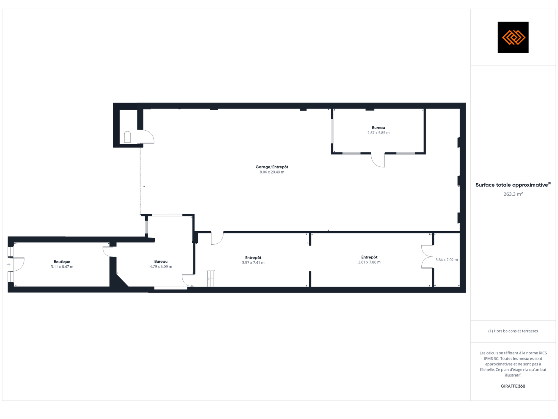
  • Surface habitable 263,00 m²
  • Etat Bon état
  • Ascenseur Non
  • Type d'énergie du chauffage Pas installé

Localisation

Vous pourriez aussi être intéressé par ces biens :

Nouveau
8df49dbbb31146958609137338209947.png 265 000 €

À Vendre Maison unifamiliale à Grâce-Hollogne

3
326 m²
245 m²
Nouveau
f9f1db61249e44bc9b9a8e4ebf9394ff.jpg Àpd 149 000 €

À Vendre Appartement à Herstal

3
92 m²
Nouveau
96aa75d350cd4378a4443c07dc12fa54.jpg Àpd 249 000 €

À Vendre Immeuble mixte à Ans Loncin

2
107 m²
210 m²
Nouveau
b4ae8c0a34064ec3a60221e532840409.png Àpd 249 000 €

À Vendre Maison unifamiliale à Ans Loncin

2
128 m²
210 m²
Nouveau
9e88f1afc3694381a6c97023e222e52b.png Àpd 199 000 €

À Vendre Maison unifamiliale à Saint-Nicolas Montegnée

2
123 m²
Nouveau
d86d595b459343ac80d29f23913e8896.png Àpd 79 000 €

À Vendre Maison à Seraing

3
95 m²
100 m²
Nouveau
17df4aa84c37491092e07e59f6ec5c25.png Àpd 219 000 €

À Vendre Maison à Chaudfontaine

3
87 m²
219 m²
64c0293fff63474a9880c608852fefcd.png Àpd 249 000 €

À Vendre Maison unifamiliale à Ans

4
200 m²
476 m²
ad2f5c0effbe4117838c14146c470d21.png Àpd 149 000 €

À Vendre Appartement à Verviers

2
110 m²
79eeff7f4bca40ca9e3523e34496554c.jpg Àpd 219 000 €

À Vendre Appartement à Liège

2
96 m²
ba14658467064107a4dc542f49eec1b9.jpg Àpd 249 000 €

À Vendre Bungalow à Donceel Jeneffe

2
97 m²
1214 m²
bee20b126d4947bdbade121c5df83681.png Àpd 179 000 €

À Vendre Entrepôt à Liège

263 m²
900aaa8f39fa45c49e65d4386bdef093.png Àpd 449 000 €

À Vendre Terrain à bâtir à Jalhay

7070 m²
Àpd 119 000 €

À Vendre Appartement à Blégny Barchon

1
51 m²

Soyez le premier informé de nos nouveaux bien