Retour à la liste
Référence :  7321185
Partager 

Maison unifamiliale

Option v.
Rue Lambert Dewonck 26 4432 Ans
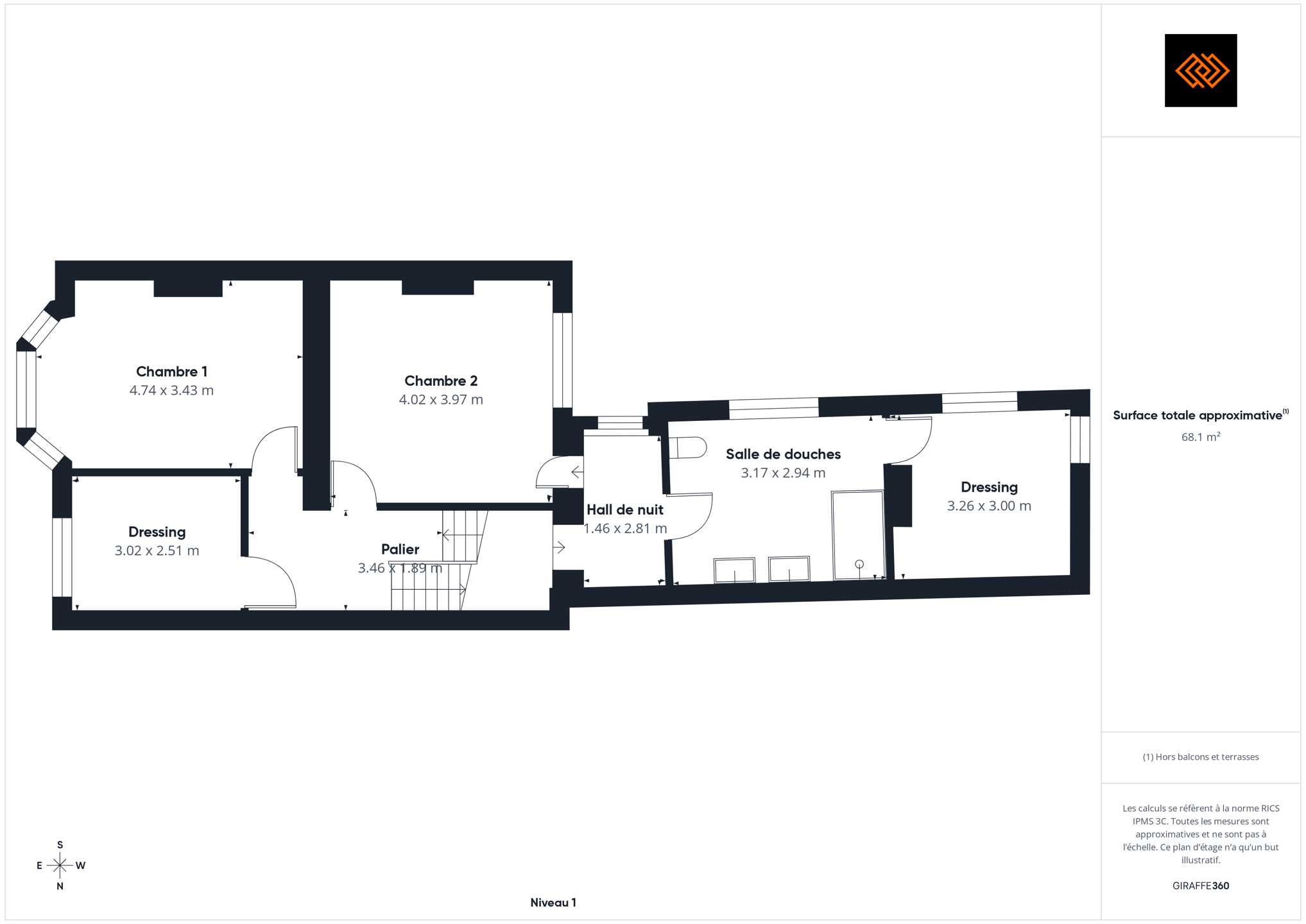
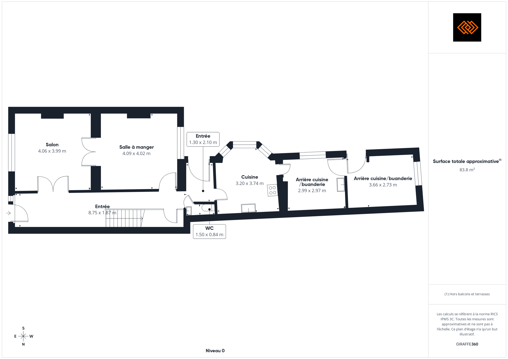
  • 4 Chambre(s)
  • 200 m² habitables
  • 1 Salles de bain
  • 476 m² de terrain

Description du bien

Située dans un environnement calme et agréable, cette maison de caractère spacieuse offre environ 200 m² habitables et un fort potentiel de personnalisation. Parfaite pour une famille, elle se compose de quatre chambres, d’un bureau et de pièces de vie lumineuses mêlant charme et confort. Le rez-de-chaussée comprend un vaste séjour, une cuisine, une buanderie et un espace de rangement. Les étages accueillent les chambres, une salle de douches et un bureau bénéficiant d’une belle luminosité. À l’extérieur, une terrasse d’environ 54 m² et un jardin de ±300 m² offrent un cadre idéal pour les repas ou la détente en plein air. Châssis bois et PVC avec double vitrage, PEB : E (n° 20260116009545), installation électrique à remettre en conformité. Une belle opportunité pour les amateurs d’espace et d’authenticité, à la recherche d’un bien de caractère à rénover selon leurs envies. Le prix ne constitue pas le seul critère qui sera pris en compte pour l'acceptation de l'offre. Pour plus d'informations sur ce bien et pour planifier une visite, veuillez contacter JULES IMMO à l'adresse visite@julesimmo.be et/ou au 04/240.08.75.
Informations générales
  • Meublé Non
  • Surface habitable 200,00 m²
  • Etat Bon état
  • Ascenseur Non
  • Double vitrage Oui
  • Chassis bois ou pvc
  • Type de chauffage individuel
  • Type d'énergie du chauffage gaz (chau. centr.)
  • Nombre de chambres 4
  • Nombre de salles de bain 1

Localisation

Vous pourriez aussi être intéressé par ces biens :

Option
d4ca688748954e628bc710758bfdcd84.jpg Àpd 379 000 €

Option v. Villa à Fléron

3
160 m²
449 m²
Option
184f0d95d2c94bfa94004f6018ba701f.png Àpd 99 000 €

Option v. Appartement à Liège Grivegnée

2
64 m²
Option
9e88f1afc3694381a6c97023e222e52b.png Àpd 199 000 €

Option v. Maison unifamiliale à Saint-Nicolas Montegnée

2
123 m²
Option
d86d595b459343ac80d29f23913e8896.png Àpd 79 000 €

Option v. Maison à Seraing

3
95 m²
100 m²
Option
17df4aa84c37491092e07e59f6ec5c25.png Àpd 219 000 €

Option v. Maison à Chaudfontaine

3
87 m²
219 m²
Option
df79b92642ff43f68453c92db2d4f822.png Àpd 175 000 €

Option v. Maison unifamiliale à Sprimont

2
75 m²
46 m²
Option
64c0293fff63474a9880c608852fefcd.png Àpd 249 000 €

Option v. Maison unifamiliale à Ans

4
200 m²
476 m²
Option
a248adaec406407da806c8265f2a1e40.jpg Àpd 249 000 €

Option v. Appartement à Visé

2
77 m²
Option
6b45a37b62ac4c3e820a268e9b8c190c.jpg Àpd 299 000 €

Option v. Maison de caractère à Fléron

4
253 m²
682 m²
Option
bad2bf23ff42403aad10a0e56259ae4c.jpg Àpd 299 000 €

Option v. Maison de caractère à Fléron

4
253 m²
682 m²
Option
ca76b8ec7401498cb5d3dcc67b711025.jpg Àpd 149 000 €

Option v. Maison unifamiliale à Fléron Romsée

4
169 m²
670 m²
Option
79eeff7f4bca40ca9e3523e34496554c.jpg Àpd 219 000 €

Option v. Appartement à Liège

2
96 m²
Option
ba14658467064107a4dc542f49eec1b9.jpg Àpd 249 000 €

Option v. Bungalow à Donceel Jeneffe

2
97 m²
1214 m²
Option
bee20b126d4947bdbade121c5df83681.png Àpd 179 000 €

Option v. Entrepôt à Liège

263 m²

Soyez le premier informé de nos nouveaux bien